Détails de l'offre
Description
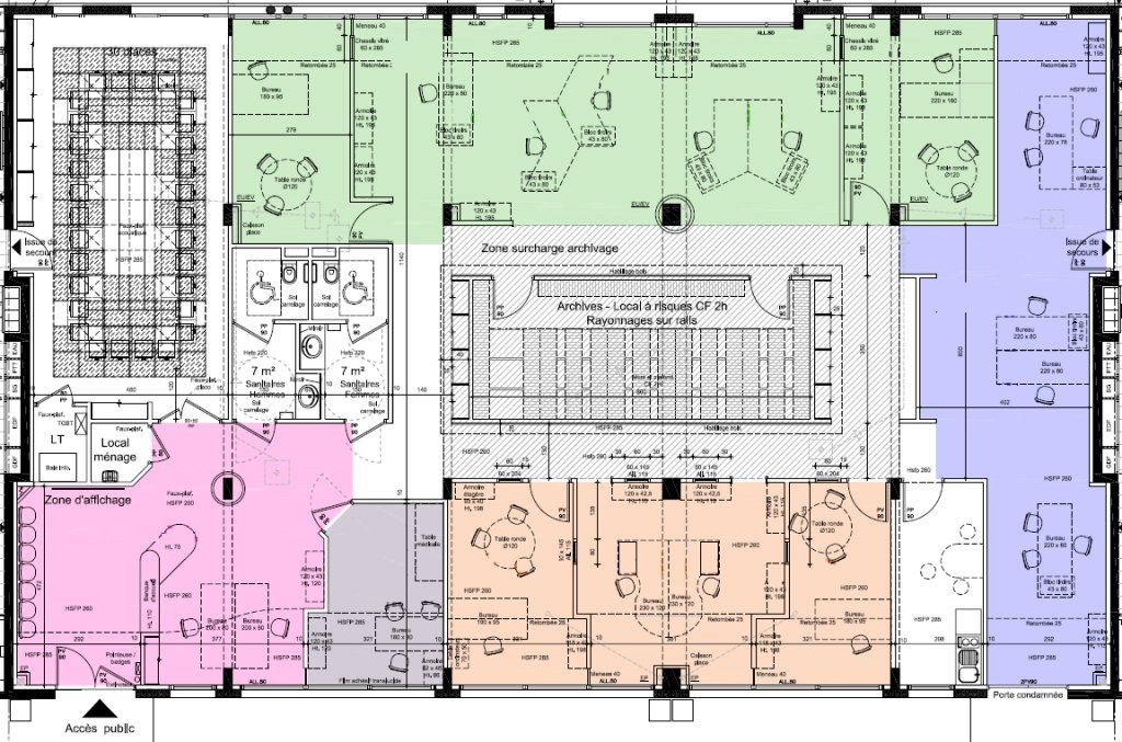
Hyper centre de Bar-le-Duc Local professionnel d'exception à louer Idéalement situé au centre de Bar-le-Duc, à seulement 2 minutes à pied de la gare SNCF, ce vaste local professionnel offre un cadre de travail fonctionnel et confortable. Il se compose de : 10 bureaux lumineux . Un open space . Une grande salle de réunion . Une salle détente . Un local d'archives . 2 WC PMR . Un local ménage. Ce bien est parfaitement adapté pour des professions libérales, cabinets ou entreprises. Disponible rapidement A votre dispostion pour plus d'informations. Contactez l'OPH de la Meuse au 03.29.45.72.56 ou par mail à r.boizet@groupeophmeuse.fr
Caractéristiques
Localisation
Bar-le-Duc se trouve dans la région historique et culturelle de la Lorraine. Préfecture de la Meuse, elle compte 14 500 habitants environ. La ville se situe à 86 km de Nancy et 126 km de Metz.
Contact
Vous avez une question ? Discutons-en !
15 rue du Moulin
CS 30195
55 005 Bar-le-Duc Cedex
Lundi - jeudi : 8h30 - 12h00 ~ 13h30 - 17h00
Vendredi : 8h30 - 12h00 ~ 13h30 - 16h00

Dernières offres
MAISON T5
BB.09181
Fromereville-les-vallons

APPARTEMENT T4
BB.03206
Gondrecourt-le-chateau

MAISON T3
BB.06381
Gondrecourt-le-chateau

